Description de l'offre
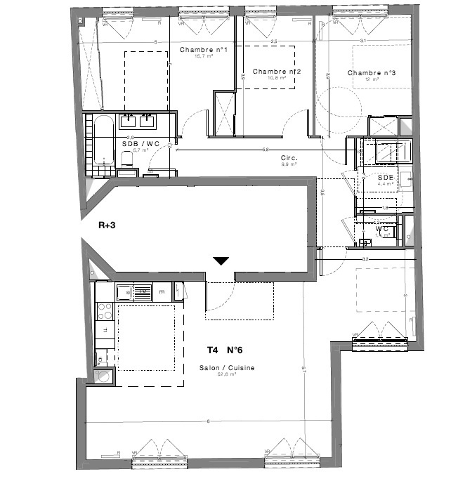
EN EXCLUSIVITE un superbe appartement refait à neuf situé au 3ème étage avec ascenseur, il se compose d'une entrée sur un très vaste séjour avec une cuisine ouverte et intégralement équipée le tout avec vue dégagée, d'un espace salle à manger ou bureau, de 3 chambres dont une suite parentale avec salle de bains WC et dressing, d'une salle d'eau et d'un WC indépendant. Un emplacement de parking en sous-sol possible en sus. Local vélo sur cour. Appartement offrant tout le confort et les avantages du neuf. Séjour PLEIN SUD. Accessible PMR. Contact pour visite : AXIMMO Paris 9

        
                    
                    
                    
                    
                    
                    
                    
                    
                    
                    
                    
            
                    
                
            
            
                                                                                                