REINE / SAUSSIERE - JAURES : 5 PIECES REFAIT A NEUF

< Retour

Outils pratiques

Partager l'annonce

Exclusivité

Appartement - Boulogne-Billancourt (92100) - 112 m² - Ref : V170004835

1 189 000
gallery loader

Description de l'offre

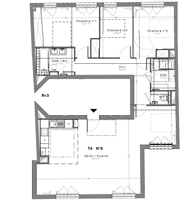
EN EXCLUSIVITE un superbe appartement refait à neuf situé au 3ème étage avec ascenseur, il se compose d'une entrée sur un très vaste séjour avec une cuisine ouverte et intégralement équipée le tout avec vue dégagée, d'un espace salle à manger ou bureau, de 3 chambres dont une suite parentale avec salle de bains WC et dressing, d'une salle d'eau et d'un WC indépendant. Un emplacement de parking en sous-sol possible en sus. Local vélo sur cour. Appartement offrant tout le confort et les avantages du neuf. Séjour PLEIN SUD. Accessible PMR.   Contact pour visite : AXIMMO Paris 9

Descriptif du bien

Prix du bien 1 189 000 €


Ville BOULOGNE-BILLANCOURT


Type de biens Appartement


Code postal 92100


Surface habitable (m²) 112 m²


Surface loi Carrez (m²) 111,70 m²


Nombre de chambre(s) 3


Nombre de pièces 5


Etage 3


Nombre de niveaux 1


Ascenseur OUI


Nb de salle de bains 1


Nb de salle d'eau 1


Cuisine AMERICAINE


Type de cuisine EQUIPEE


Mode de chauffage Gaz de ville


Type de chauffage Radiateur


Format de chauffage Individuel


Visiophone OUI


Balcon NON


Terrasse NON


Cave NON


Exposition NORD-SUD


Quartier MAIRIE / REINE


Copropriété OUI


Lot n° 6


Quote Part annuelle des charges 3 780 €


plan de sauvegarde NON


statut du syndic pas de procédure en cours


Prix de vente 1 189 000 €


Les honoraires d'agence seront intégralement à la charge du vendeur  


  • Charges mensuelles 315 €
  • Taxe foncière annuelle 1 680 €


    Diagnostics de performance énergétique

    DPE
    DPE

    Montant estimé des dépenses annuelles d'énergie de ce logement pour un usage standard est compris entre 730 € et 988 € . 2021 étant l'année de référence des prix de l'énergie utilisés pour établir cette estimation.

    Cette annonce vous intéresse ?

    * Champs obligatoires

    * : Les informations recueillies sur ce formulaire sont enregistrées dans un fichier informatisé par La Boite Immo agissant comme Sous-traitant du traitement pour la gestion de la clientèle/prospects de l'Agence / du Réseau qui reste Responsable du Traitement de vos Données personnelles.
    La base légale du traitement repose sur l’intérêt légitime de l'Agence / du Réseau.
    Elles sont conservées jusqu'à demande de suppression et sont destinées à l'Agence / au Réseau.
    Conformément à la loi « informatique et libertés », vous pouvez exercer votre droit d'accès aux données vous concernant et les faire rectifier en contactant l'Agence / le Réseau.
    Si vous estimez, après avoir contacté l'Agence / le Réseau, que vos droits « Informatique et Libertés » ne sont pas respectés, vous pouvez adresser une réclamation à la CNIL.
    Nous vous informons de l’existence de la liste d'opposition au démarchage téléphonique « Bloctel », sur laquelle vous pouvez vous inscrire ici : https://www.bloctel.gouv.fr 
    Dans le cadre de la protection des Données personnelles, nous vous invitons à ne pas inscrire de Données sensibles dans le champ de saisie libre
    Ce site est protégé par reCAPTCHA, les Politiques de Confidentialité et les Conditions d'Utilisation de Google s'appliquent.

    La ville de Boulogne-Billancourt (92100)

    Adhérents